11343 Gold Finch Drive - $1,380,000 - Jerome Village

Contact Us About This Home
All fields required
Answer the question below:
Cat is not an animal. (true/false)


Overview

Jerome Village - 5 BR, 4.5 BA, 3 Car garage

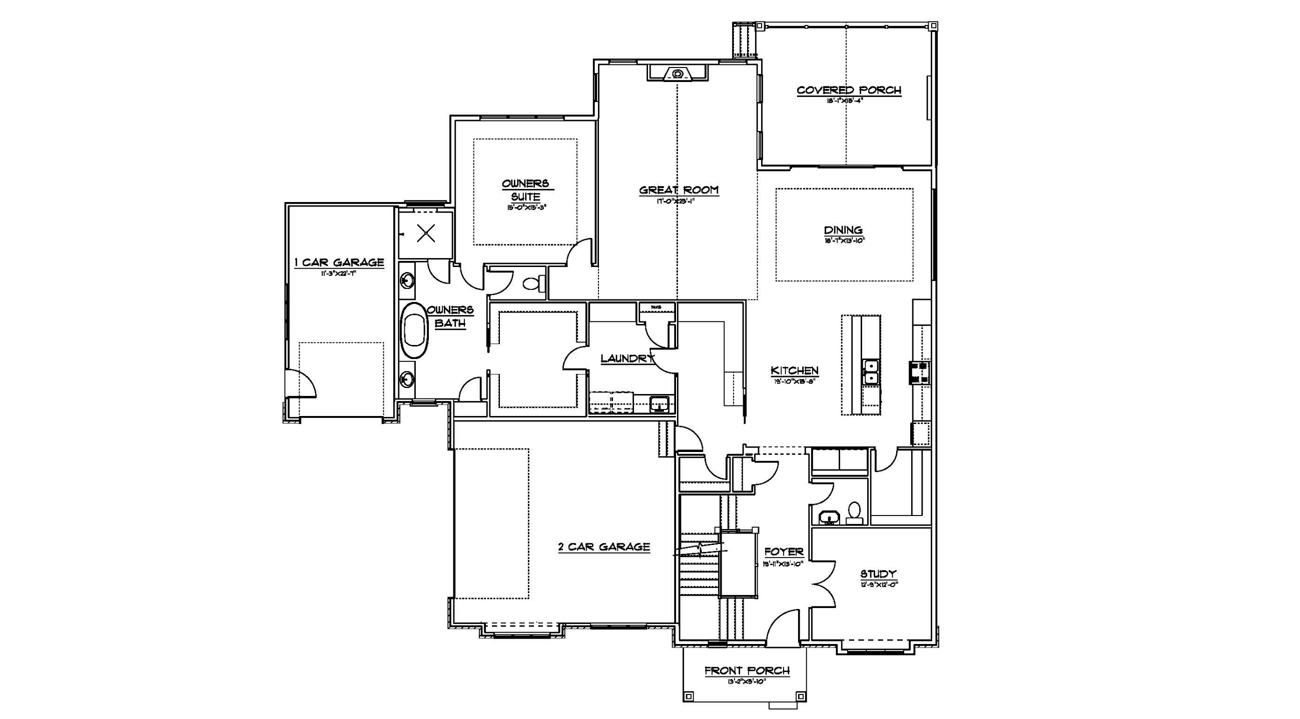
Impressive 5-Bedroom Home with First-Floor Owner’s Suite
Located in Jerome Village, this stunning home offers the perfect blend of luxury, space, and comfort. With 5 bedrooms, 4.5 baths, and an array of exceptional features, it’s designed for both everyday living and entertaining.
Step inside to find a spacious first-floor owner’s suite featuring a custom bath with a designer shower, a large walk-in closet, and a convenient laundry room with built-in cabinets and a sink. The open-concept kitchen boasts beautiful quartz countertops, stainless steel appliances, and a large island that’s perfect for meal prep or casual dining. The kitchen flows seamlessly into the vaulted great room, creating a bright and airy space for family gatherings.
A private study off the entry foyer offers a quiet retreat for work or relaxation. The finished basement is an entertainer’s dream, featuring a finished rec room with a wet bar, an additional bedroom, and a 3/4 bath for ultimate convenience.
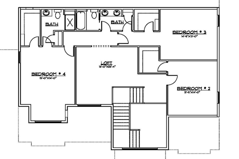
Upstairs, you’ll find 3 spacious bedrooms and 2 full baths, along with a large loft area that offers endless possibilities as a playroom, additional living space, or home office.
Outside, enjoy a covered rear porch, a welcoming front porch, and a spacious backyard. The home also features a 3-car garage, providing ample space for vehicles and storage.
This home truly has it all — a perfect balance of style, comfort, and practicality in a peaceful setting.
 

Contact Us About This Home

11343 Gold Finch Drive

11343 Gold Finch Drive, Plain City

View larger map
1_Olentangy Local School District2_Dublin City School District3_Fairbanks Local School District5_Hilliard School District6_New Albany School District7_Westerville School District8_Buckeye Valley School District9_Big Walnut Local Schools
Features

Plain City
11343 Gold Finch Drive

  • First Floor
    Download PDF

    11343 Gold Finch Drive: First Floor

  • Second Floor
    Download PDF

    11343 Gold Finch Drive: Second Floor

  • Basement
    Download PDF

    11343 Gold Finch Drive: First Floor